DLS水-风冷却假负载功率计
  DLF风冷却假负载
  DLC干式自然冷却假负载
  DLA干式自冷却衰减器
  DLCP干式自然冷却假负载功率计
  射频大功率电阻器
  大功率微带电阻器、终端负载、衰减器
  同轴转换开关
  无源器件
   
bed@rf-bed.com
 
  首页 > 产品展示 > DLS水-风冷却假负载功率计 >正文
 
打印 收藏 返回
DLS-800KW水-风冷却假负载功率计
DLS系列水-风冷却假负载功率计可作为RF发射机的调试与功率测量之用。此系列产品具有如下特点:使用频率宽、电压驻波比低≤1.10、承受功率大、操作简便、可靠性高、功率测量准确≤5%RS-485通讯接口、假负载功率计为全数字显示具有多种报警功能可与发射机同轴开关形成联锁保护回路、使用环境温度可达-35+45
                                
查看PDF  
 
  产品详细说明
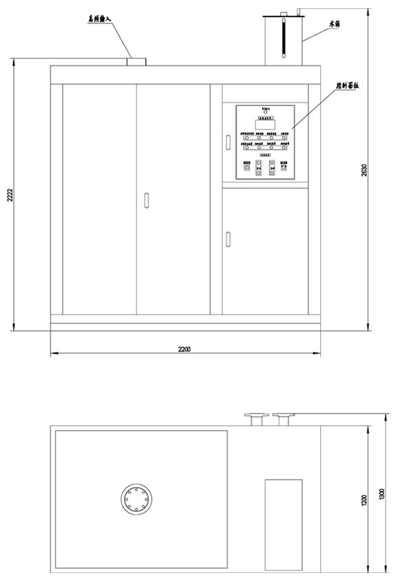
型号: DLS-800KW
功率: 800KW
工作频率: DC-30MHz
阻抗: 50Ω
电压驻波比: ≤1.10:1
输出馈管尺寸: 用户要求
功率测量: 微电脑全数字显示
冷却方式: 水-风
计算机通讯方式: RS-485
外型尺寸: 2200×1300×2630mm
主机重量: 500kg
配套热交换器FS-100kW: 8台

导航链接:官方博客 假负载 衰减器 微带电阻 同轴开关 射频电阻 射频功率计 发射机